Um das Wurzelwerk geschützter Bäume zu schonen, sollten die neuen Häuser am Ortsrand von Breitbrunn auf Pfählen stehen. Keller waren nicht eingeplant. Quelle: Gemeinde Herrsching.
Nach eineinhalb Jahren Neuplanung gibt es plötzlich sieben Häuser mit Keller und Tiefgarage. Von der ökologischen Behutsamkeit scheint nicht mehr viel übrig zu sein.

Statt Ökohäusern Massivbauten – statt Pfahlbau-Architektur Tiefgarage

2 mins read

Bauausschuss beschäftigt sich mit geplanter Hausvermehrung am Breitbrunner Ortsrand/Gemeinderätin Gruber fürchtet um denkmalgeschützte Bäume/Geplante Doppelhäuser würden Stieleichen sehr nah kommen///

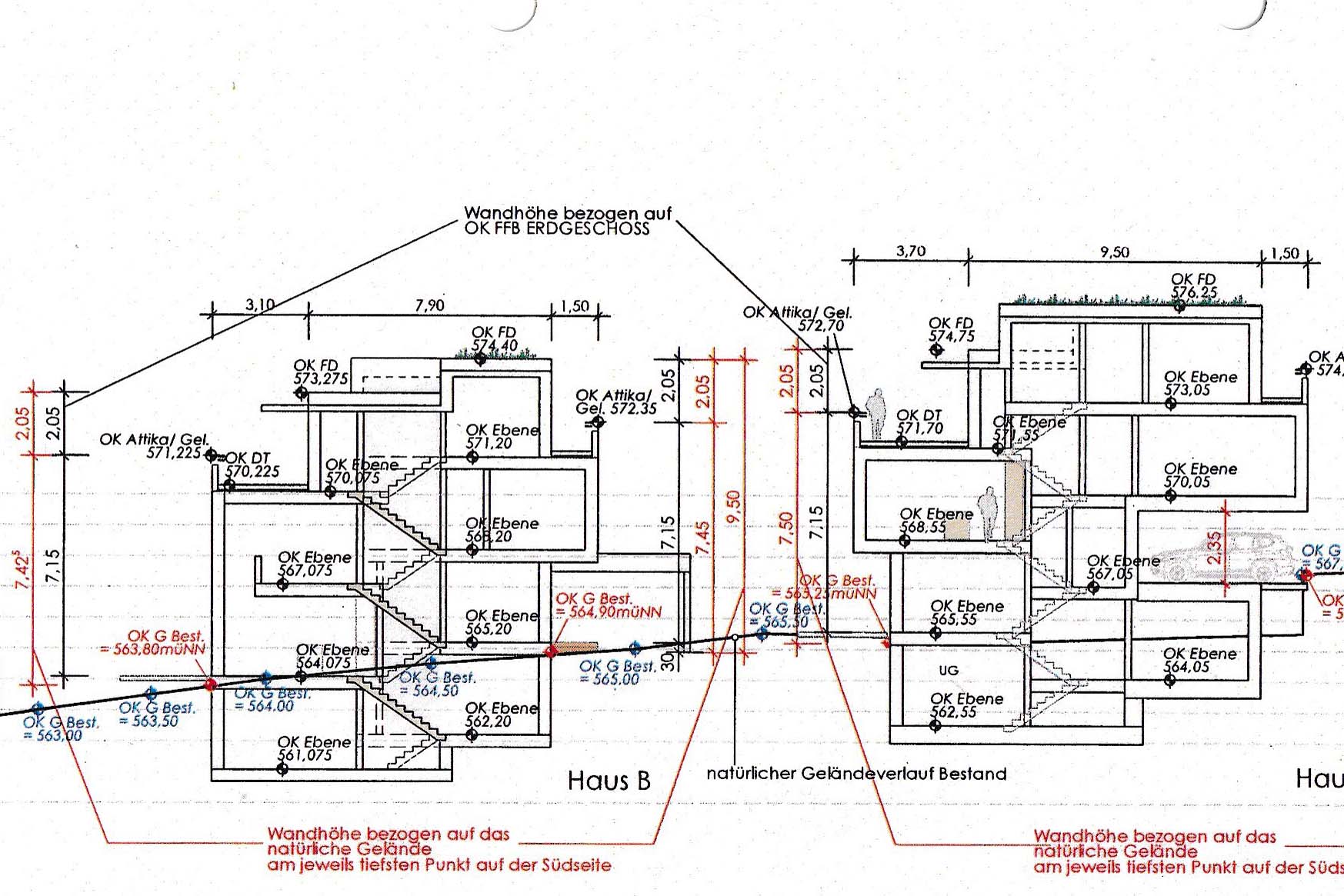
„Baumschutz der ungewöhnlichen Art“, jubelte herrsching.online im letzten Sommer: Um Bäume unter Denkmalschutz (ja, das gibt’s) vor Schaden zu bewahren, wollte ein Bauträger seine neuen Häuser auf Pfählen bauen und in Holzständerbauweise errichten. Der Bauausschuss machte damals einen Haken an das Projekt am Breitbrunner Winkelweg (Flurnummer 586/2). Kaum eineinhalb Jahre später lag die Minisiedlung wieder auf dem Tisch des Bauausschusses. Da aber war nichts mehr von wurzelschonender Pfahlbauweise und Verzicht auf Kellergeschosse zu sehen: Aus fünf schnuckeligen Einfamilienhäusern wurden drei Doppelhaushälften und ein Einfamilienhaus, und statt Pfählen sollte es Säulen geben – für ein Tiefgarage. Gemeinderätin Christiane Gruber verwahrte sich mit deutlichen Worten gegen die Planung, auch CSU-Gemeinderat Thomas Bader war die Wandhöhe von 9,5 Metern zu mächtig (seine CSU-Fraktionskollegen stimmten allerdings dafür). Acht Räte meinten freilich, dass das Vorhaben „nach dem Maß der baulichen Nutzung“ nicht zulässig sei und schmetterten die neuen Pläne ab.

Der neue Plan für das Flurgrundstück 586/2 am Breitbrunner Winkelweg: Die Häuser würden den denkmalgeschützten Stieleichen gefährlich nahekommen. Quelle: Gemeinde Herrsching

Vielleicht witterte der Bauträger Morgenluft. Das Landratsamt hatte in jüngster Zeit schon mehrmals Pläne genehmigt, die im Bauausschuss durchgefallen waren (Fachsprache: Das gemeindliche Einvernehmen wird ersetzt).

Gemeinderätin Christane Gruber (BGH) hatte in der Vergangenheit vergeblich versucht, für die Grundstücke einen Bebauungsplan durchzusetzen. Ihr war schon damals die mächtige Versiegelung von rund 700 Quadratmetern plus Zufahrtsstraßen für 5 Häuser zuviel. Bürgermeister Schiller hatte aber Zweifel geäußert, ob ein Bebauungsplan einen ökologischen Vorteil brächte: Ein Bebauungsplan dürfe das Baurecht nicht beschränken, sonst mache sich die Gemeinde Schadenersatz-pflichtig, sagte er.

Anlass für die Debatte im letzten Jahr war die Absicht des Bauträgers, das Grundstück noch intensiver bebauen. Aber der gemeindliche Einsatz für Landschaft und Natur hatte Früchte getragen: In der Bauvoranfrage 2023 wurden die ursprünglichen Pläne auf fünf Einfamilenhäuser eingedampft.

Erleichtert wurde die Zustimmung des Bauausschusses 2023 auch durch die ökologisch ausgerichteten Baupläne: Die Häuser sollten in Holzbauweise mit begrünten Flachdächern errichtet werden. Zudem wäre der Energiebedarf reduziert worden. Damit die Wurzeln der Bäume geschont werden, wären die Gebäude auf Pfählen errichtet worden und nicht unterkellert gewesen. Außerdem standen sie nicht im Kronen-Traufbereich der Eichen.

Diese Empfehlungen stammen von der Konferenz der Gartenamtsleiter Deutschlands.

Nach den Richtlinien der Deutschen Gartenamtsleiterkonferenz sollten Bäume im Wurzelbereich nicht mit schwerem Gerät befahren wurden. Diese Schutzzone umfasst den Durchmesser der Baumkrone plus einen Sicherheitsabstand von 1,5 Metern. Christiane Gruber vermutete in der letzten Sitzung, dass die zwei südlichen Häuser den geschützten Stieleichen viel zu nah kommen.

Es wäre also möglich, vielleicht sogar wahrscheinlich, dass schwere Baufahrzeuge über die Wurzelzonen der geschützten Stieleichen fahren würden. In diesem Bereich ist nach den Richtlinien der Gartenamtsleiter sogar das Lagern schwerer Gegenstände untersagt. Selbstverständlich dürfen in diesem Bereich auch keine Erdarbeiten ausgeführt werden. „Humus“, sagt der Herrschinger Landschaftsingenieur Konrad Herz, „der durch das Befahren verdichtet wurde, ist für immer kaputt, weil er seine Strukturstabilität verloren hat.” Deshalb mussten beispielsweise am Rauscher Fußweg und am Unteren Stocketweg Bäume gefällt werden, die Jahre nach der Belastung durch Baufahrzeuge in den Kronen tot waren und damit eine Verkehrsgefährdung darstellten.

Auch Gemeinderat Christoph Welsch warnte in der Bauuausschuss-Sitzung vor dem zunehmenden Verkehr durch die sieben Wohneinheiten. Und eine Tiefgarage sei schwerlich machbar in dem Gelände. Er stimmte dem Vorhaben – zusammen mit CSU-Räten und Bürgermeister – trotz seiner eigenen Gegenargumente zu.

Half freilich nichts, die jetzt vorgelegten Pläne werden vermutlich noch eine weitere Änderungsrunde drehen: Sieben Räte meinten nämlich, dass die maximale Wandhöhe von 9,50 Meter (bergseitig) planungsrechtlich nicht zulässig sei. Zugestimmt aber hat der Ausschuss der Anzahl der Gebäude, deren Grundfläche und der Tiefgarage. Als ökologisches Zugeständnis wurde der Baumschutz ins Protokoll aufgenommen.

Vorschlag aus der Bürgerschaft: Die alten Pläne, die schon einmal abgesegnet waren, einfach wieder reaktivieren. Die Bäume, die Landschaft und das Ortsbild würden Danke sagen.

1 Comment

  1. Der Wahnsinn geht weiter! Bürgermeister Schillers stete Drohung, dass die Gemeinde bei Aufstellung eines Bebauungsplans schadenersatzpflichtig wird hat schon einige B-Pläne verhindert. In meinen 36 Jahren im Gemeinderat hat die Gemeinde nicht einen Cent Strafe bezahlt!

Schreibe einen Kommentar

Your email address will not be published.

Aktuellste Meldungen